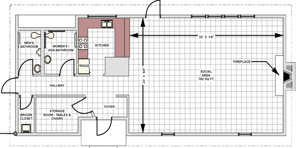
This park features a new playground, benches, picnic areas, and a 1,500 square-foot clubhouse available for parties, showers and meetings.
The clubhouse has a large open room for your gatherings and a full kitchen, restrooms, 10 folding tables and up to 60 chairs. Maximum occupancy is 50 people.